Saturnus 10

7131 HK LICHTENVOORDE

€ 309.000,- k.k.

Omschrijving

Fijne en ruime instapklare tussenwoning gelegen aan een rustig woonpleintje in het bruisende Lichtenvoorde. Deze woning beschikt over maar liefst vier slaapkamers en fijne leefruimtes op de begane grond.

Begane grond:
We komen binnen in de lichte hal, waar we een volledig betegeld toilet met fonteintje, de meterkast, de garderobe en de trapopgang naar de eerste verdieping vinden. Doorgelopen komen we in de lichte en ruim opgezette woonkamer, welke door de schuifpui en grote raampartijen ondergedompeld wordt in natuurlijk licht. Grenzend aan de woonkamer vinden we de fijne L-vormige woonkeuken. De keuken is voorzien van een inductieplaat, vaatwasser, combi oven-magnetron, koelkast en een natuurstenenblad. In de keuken is ook voldoende ruimte gecreëerd voor het plaatsen van een grote eettafel. Door de aangebrachte raampartijen aan de voorzijde van de woning kent ook deze ruimte veel lichtinval. Via de keuken is de nette bijkeuken berging te betreden. Deze ruimte is geïsoleerd en beschikt tevens over een handige bergzolder.

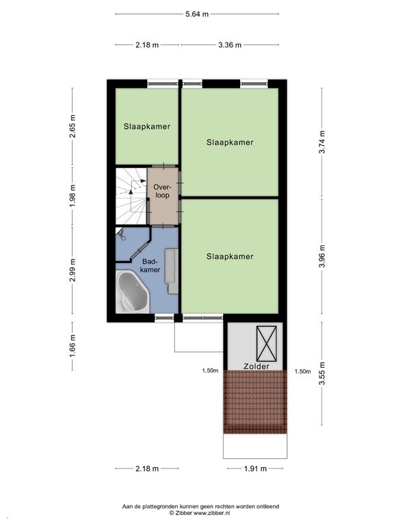
Eerste verdieping:
Op de eerste verdieping zijn drie slaapkamers en een badkamer gelegen. Twee van de drie slaapkamers zijn zeer ruim opgezet en de derde slaapkamer is momenteel in gebruik als inloopkast. De badkamer is volledig betegeld en uitgerust met een inloopdouche, een ligbad, een designradiator en een dubbele wastafel met meubel.

Tweede verdieping:
Op de tweede verdieping vinden we de vierde slaapkamer en een ruime overloop. Op de overloop vinden we de witgoedopstelling, de cv-ketel en de omvormer van de 12 zonnepanelen. De vierde slaapkamer is ruim opgezet, voorzien van twee grote dakramen en bergruimte in de knieschotten.

Tuin:
De tuin is gelegen op het zuiden wat zorgt voor veel zonlicht. Tevens beschikt de tuin over een overkapping, waar een heerlijke zithoek kan worden gecreëerd. De tuin is grotendeels betegeld wat ervoor zorgt dat de tuin redelijk onderhoudsvrij is.

Ligging:
Op steenworpafstand is het wandelpad rondom Lichtenvoorde gelegen, ideaal voor een fijne avondwandeling of om een rondje met de hond te lopen. Op fietsafstand vinden we het centrum van Lichtenvoorde met zijn voorzieningen.

Bijzonderheden:
• Gebruiksoppervlakte wonen 118 m2;
• Perceeloppervlakte 155 m2;
• Begane grond voorzien van vloerverwarming (m.u.v. toilet en bijkeuken);
• Woning grotendeels voorzien van kunststof kozijnen;
• Energielabel A geldig tot 04 november 2031;
• Zonnepanelen aanwezig (12 stuks geplaatst in 2017);
• Gelegen aan een rustig woonpleintje;
• Begane grond voorzien van plavuizen in lichte kleurstelling en de eerste verdieping is voorzien van nette doorlopende laminaatvloer.

AANVAARDING: IN OVERLEG
VRAAGPRIJS: € 309.000,- K.K.

Tot zekerheid van de nakoming van de verplichtingen van de koopovereenkomst dient de kopende partij een bankgarantie te stellen of een waarborgsom te storten ten bedrage van 10% van de koopsom.

Kenmerken

Overdracht

Prijs

€ 309.000,- k.k.

Status

Verkocht

Aanvaarding

In overleg

Bouw

Soort woonhuis

Eengezinswoning

Soort bouw

Bestaande bouw

Bouwjaar

1975

Soort dak

Zadeldak

Oppervlakten en inhoud

Wonen

118 m²

Gebouwgebonden buitenruimte

3 m²

Externe bergruimte

7 m²

Perceel

155 m²

Inhoud

423 m³

Indeling

Aantal kamers

5

Aantal slaapkamers

4

Aantal badkamers

1

Badkamervoorzieningen

  • Ligbad
  • Douche
  • Dubbele wastafel
  • Wastafelmeubel

Voorzieningen

  • Mechanische ventilatie
  • Rolluiken
  • Tv kabel
  • Buitenzonwering
  • Schuifpui
  • Dakraam
  • Glasvezel kabel
  • Zonnepanelen
  • Natuurlijke ventilatie

Energie

Energielabel

A

Isolatie

Dakisolatie, muurisolatie, vloerisolatie, dubbel glas

Warm water

Cv ketel

Cv-ketel

Remeha calenta

Kadastrale gegevens

Oppervlakte

155

Buitenruimte

Ligging

Aan rustige weg, in woonwijk

Tuin

Achtertuin, voortuin

Ligging tuin

Zuid

Bergruimte

Schuur/berging

Aangebouwd hout

Garage

Soort garage

Geen garage

Parkeergelegenheid

Parkeergelegenheid

Openbaar parkeren