Rekkenseweg 44 Kavel 8 0-Ong
7157 AE REKKEN
€ 285.000,- k.k.
Omschrijving
PLAN KERKEMEIJER REKKENIn het grensdorpje Rekken worden vier levensloopbestendige twee-onder-één kap woningen en zes starterswoningen gerealiseerd. De nieuwbouwwoningen worden gesitueerd achter het monumentale café met winkeltje genaamd Kerkemeijer.
REKKEN EN HAAR PLAN
Rekken is een Gelders dorpje vlakbij de Duitse grens dat wordt gesplitst door het riviertje ‘De Berkel’. Hierdoor bestaat het dorpje uit twee kernen. Verder staat Rekken bekend op zijn prachtige fiets- en wandelpaden, waarbij ook vaak ‘De Berkel’ wordt overgestoken. De afgelopen jaren zijn er vele plannen gemaakt om de leefbaarheid van Rekken enorm te stimuleren. Hier komt ook het plan Kerkemeijer in voor. Daarnaast zal het monumentale café Kerkemeijer aan de Rekkenseweg een grondige restauratie en verbouwing ondergaan, welke het gebouw toekomstbestendig gaat maken. Ook de buurman van Kerkemeijer, de rooms-katholieke Kerk op ‘t Kip, zal een transitie ondergaan tot overnachtingslocatie voor pelgrims en toeristen. Door deze ontwikkeling kan het café gaan dienen als plek voor ontbijt, lunch en wellicht diner. Tussen Kerkemeijer en Kerk op ’t Kip zal een gemeenschappelijke terrastuin worden gemaakt, zodat beide functies elkaar kunnen ondersteunen.
NIEUWBOUWWONINGEN
In de achtertuin van de voorgenoemde ontwikkelingen gaat Vastgoed Rekken B.V. tien nieuwbouwwoningen realiseren. De tien nieuwbouwwoningen zullen opgedeeld worden in vier twee-onder-één kap woningen en zes starterswoningen. Daarnaast zullen er nog twee modulaire woningen geplaats worden voor een duur van maximaal tien jaren. De twee-onder-één kap woningen en starterswoningen zullen worden opgeleverd conform de meest recente eisen betreffende isolatie. Daarnaast worden er zonnepanelen aangebracht conform de BENG-eisen (Bijna Energie Neutrale Gebouwen). De woningen zullen worden verwarmd door middel van een lucht-warmtepomp. Daarnaast beschikt elke woning tot een eigen toegewezen parkeerplaats op het terrein. De rest van de parkeerplaatsen dient voor openbaar gebruik.
KAVELVERDELING:
Kavel 1 t/m 4: Twee-onder-één kap woningen.
Kavel 5 t/m 10: Starterswoningen.
KAVEL 8 IS BESCHIKBAAR!
• Woonoppervlakte: 77 m²
• Perceel oppervlakte: 102 m²
• Inhoud: 310 m³
• Externe bergruimte: 6 m²
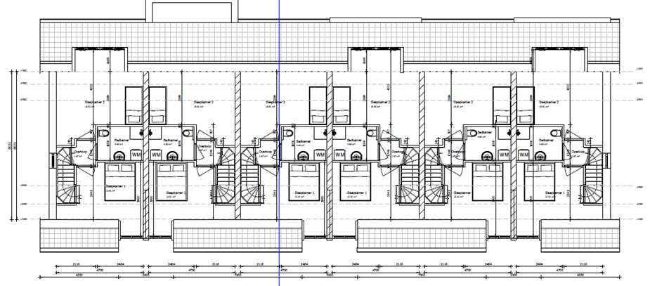
Begane grond: entree met toegang tot toilet, meterkast, woonkamer en trapopgang. Ruime woonkamer met open keuken, welke beschikt over inbouwapparatuur.
Eerste verdieping: overloop met toegang tot twee slaapkamers en badkamer welke beschikt over een toilet, een douche en een wastafelmeubel.
Tuin: aan te leggen tuin met een vrijstaande houten berging.
KOOPSOM: € 285.000,- VRIJ OP NAAM
Inbegrepen kosten:
• Standaard keukenblok;
• Toilet begane grond met standaard sanitair, bestaande uit een inbouwreservoir, toiletpot met toiletbril en een fontein met kraan;
• De badkamer wordt voorzien van standaard sanitair bestaande uit een wastafelmeubel met spiegel, douchemengkraan met een doucheset (geleidestand met douchekop) en een doucheplug/putje, inbouwreservoir met toiletpot en toiletbril;
• Vrijstaande houten berging in tuin.
Niet inbegrepen kosten:
• Uitbouw van 1,2 meter achtergevel of uitbouw van 2,4 meter achtergevel;
• Dakkapel woning.
Voor verdere informatie zie optielijst.
Rekken ligt op circa 8 minuten rijden van het centrum van het dorp Eibergen, waar zich verschillende voorzieningen zoals supermarkten, restaurants en winkels bevinden. Via de vernieuwde N18 is de stad Enschede te bereiken in circa 30 minuten.
Kenmerken
Overdracht
Prijs
€ 285.000,- k.k.
Status
Onder optie
Aanvaarding
In overleg
Bouw
Soort woonhuis
Eengezinswoning
Soort bouw
Nieuwbouw
Bouwjaar
2024
Soort dak
Zadeldak
Oppervlakten en inhoud
Wonen
77 m²
Externe bergruimte
6 m²
Perceel
102 m²
Inhoud
310 m³
Indeling
Aantal kamers
3
Aantal slaapkamers
2
Aantal badkamers
1
Badkamervoorzieningen
- Toilet
- Douche
- Wastafel
Voorzieningen
- Mechanische ventilatie
- Tv kabel
- Glasvezel kabel
- Zonnepanelen
- Natuurlijke ventilatie
Energie
Isolatie
Dakisolatie, muurisolatie, vloerisolatie, dubbel glas, volledig geisoleerd, hr glas
Warm water
Cv ketel
Kadastrale gegevens
Oppervlakte
102
Buitenruimte
Ligging
Aan rustige weg, in woonwijk
Tuin
Achtertuin, voortuin
Ligging tuin
Noordoost
Bergruimte
Schuur/berging
Vrijstaand hout
Garage
Soort garage
Geen garage
Parkeergelegenheid
Parkeergelegenheid
Openbaar parkeren, parkeervergunningen
1
Scan de code
Wormgoor Whatsapp
Welkom bij Wormgoor 👋
Mocht je vragen hebben dan zijn we ook via Whatsapp te bereiken tijdens kantooruren!
Mocht je vragen hebben dan zijn we ook via Whatsapp te bereiken tijdens kantooruren!
Begin een chat

