Oostendorperweg 35-Z
7481 VE HAAKSBERGEN
€ 350.000,- k.k.
Omschrijving
Op een schitterende locatie, in het buitengebied van Haaksbergen, ligt deze bijzondere vrijstaande recreatiewoning op eigen grond.Deze woning biedt genoeg ruimte om heerlijk te recreëren en ligt op een prachtige plek nabij de Watermolen van Haaksbergen. De recreatiewoning is uitermate geschikt voor zowel eigen gebruik als beleggingsobject.
Nieuwsgierig geworden? Wij laten deze woning graag aan je zien.
De indeling is als volgt:
Begane grond:
Welkom! Via de zijkant van de woning bereik je de entree. Vanuit de entree is de toilet, badkamer, woonkamer en keuken te bereiken. De woonkamer biedt uitzicht op de tuin en doormiddel van de terrasdeuren heb je toegang tot de serre. De keuken, gescheiden van de woonkamer, beschikt over een vaatwasser, koelkast, 4-pits gaskookplaat en oven. De badkamer beschikt over een hoekbad, wastafel en toilet. Tevens zit hier de aansluiting voor de wasmachine en droger.
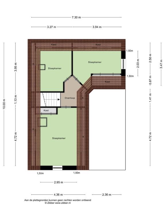
Eerste verdieping:
Vanaf de overloop op de eerste verdieping zijn er drie slaapkamers bereikbaar. Allen van prima formaat. Twee slaapkamer zijn voorzien van vaste kast.
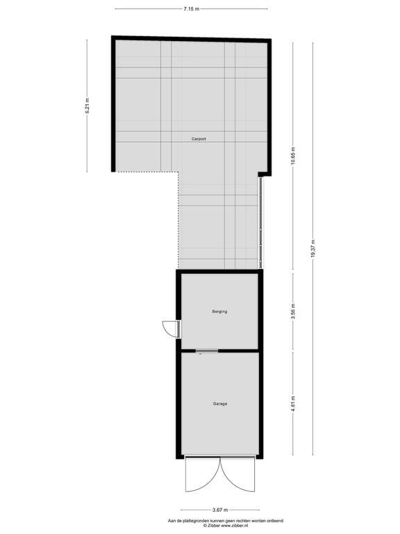
Tuin en garage:
De woning heeft het voordeel van een ruime tuin rondom het huis, waardoor je altijd kunt genieten van de zon. De tuin biedt voldoende ruimte om te ontspannen en te genieten van de natuur. Er is een garage met dubbele garagedeuren aanwezig. Hierachter is de berging gesitueerd, ideaal voor het opbergen van al je tuingereedschap. Je auto kun je parkeren onder de carport.
Bijzonderheden:
- Recreatiewoning op eigen grond;
- Bouwjaar 1993;
- Perceeloppervlakte 1.015 m2;
- Tuin met serre;
- Krachtstroom in de schuur;
- Garage met carport;
- Dakpannen in 2024 gereinigd en geïmpregneerd;
- Voorzien van 11 zonnepanelen, deze dienen nog aangesloten te worden;
- Voldoende bergruimte;
- Fraaie locatie in het buitengebied van Haaksbergen;
- Airconditioning op de eerste verdieping;
Aanvaarding: in overleg
Vraagprijs: € 350.000,- k.k.
Tot zekerheid van de nakoming van de verplichtingen van de koopovereenkomst dient de kopende partij een bankgarantie te stellen of een waarborgsom te storten ten bedrage van 10% van de koopsom.
Kenmerken
Overdracht
Prijs
€ 350.000,- k.k.
Status
Verkocht
Aanvaarding
In overleg
Bouw
Soort woonhuis
Eengezinswoning
Soort bouw
Bestaande bouw
Bouwjaar
1993
Oppervlakten en inhoud
Wonen
110 m²
Externe bergruimte
36 m²
Perceel
1015 m²
Inhoud
409 m³
Indeling
Aantal kamers
5
Aantal slaapkamers
3
Aantal badkamers
1
Badkamervoorzieningen
- Ligbad
- Toilet
- Wastafelmeubel
Voorzieningen
- Airconditioning
- Rookkanaal
- Dakraam
- Glasvezel kabel
- Zonnepanelen
- Natuurlijke ventilatie
Energie
Energielabel
C
Isolatie
Dakisolatie, muurisolatie, vloerisolatie
Warm water
Cv ketel
Cv-ketel
Remeha
Kadastrale gegevens
Oppervlakte
1015
Buitenruimte
Ligging
Aan bosrand, vrij uitzicht, beschutte ligging, landelijk gelegen
Tuin
Tuin rondom
Achtertuin
900
Bergruimte
Schuur/berging
Vrijstaand hout
Schuur/berging voorzieningen
Voorzien van elektra
Garage
Soort garage
Vrijstaand hout, carport
Garage capaciteit
1
Garage voorzieningen
Elektra
Garage isolatie
Geen isolatie
Parkeergelegenheid
Parkeergelegenheid
Op eigen terrein
Mocht je vragen hebben dan zijn we ook via Whatsapp te bereiken tijdens kantooruren!

