Meester Nelissenstraat 69
7156 MB BELTRUM
€ 599.000,- k.k.
Omschrijving
Uniek wonen in deze vrijstaande woning op een prachtige locatie in Beltrum waar genoten kan worden van het fraaie uitzicht en het mooie coulisselandschap. Deze woning met veel lichtinval is gelegen op een royaal perceel van maar liefst 2.115 m².De woning is gebouwd in 1967 onder architectuur van Gerard Schouten en omstreeks 1997 verbouwd. De ruimte in de woning spreekt tot de verbeelding wat zichtbaar is in het ruime woonoppervlakte van 165 m².
De woning, die op loopafstand van de kern Beltrum ligt, wordt omgeven door een ruime tuin rondom welke diverse mogelijkheden biedt zoals het houden van kleinvee.
Kortom, zoek je een fijn huis in een rustige buurt met toch de rust en ruimte van buitenaf? Wij laten deze unieke woning met veel plezier aan je zien.
De indeling is als volgt:
Begane grond:
In dit fijne huis kom je binnen in de royale entree met open trapopgang met bordes en toegang naar de woonkamer, bijkeuken, slaapkamer, toilet, badkamer en bijkeuken. De woonkamer is gesitueerd op het zuidwesten en heeft een prettige lichtinval, volmaakte privacy en rust. Met de gezellige houthaard creëer je sfeervolle warmte. Er is ruimte voor een royale eettafel. Vanuit de eethoek heb je via de openslaande tuindeuren toegang tot het zonneterras. Vanuit de woonkamer heb je toegang tot de dichte moderne keuken, welke perfect is ingedeeld met veel werkblad en diverse inbouwapparatuur. Daarbij is er genoeg bergruimte in de keukenkasten en heb je toegang tot buiten middels een enkele loopdeur. De slaapkamer op de begane grond is van goed formaat en afgewerkt met een laminaatvloer en behang, en wordt middels radiatoren verwarmd. Vanuit de slaapkamer bereik je de badkamer op de begane grond. Deze is uitgerust met een wastafel, douche en toilet. Loop je door vanuit de slaapkamer dan bereik je een tussenruimte welke momenteel in gebruik is als werk-/studeerkamer, maar uiteraard ook inzetbaar is voor andere doeleinden zoals atelier, speel- of slaapkamer. Daarnaast is op de begane grond een praktische bijkeuken met keukenblok met gootsteen bereikbaar. Dit is tevens de opstelplaats voor de cv-ketel en het witgoed. Er is een inpandige garage aanwezig op de begane grond. Deze is van binnenuit te bereiken, van buitenaf en door middel van een op afstand bedienbare segmentdeur.
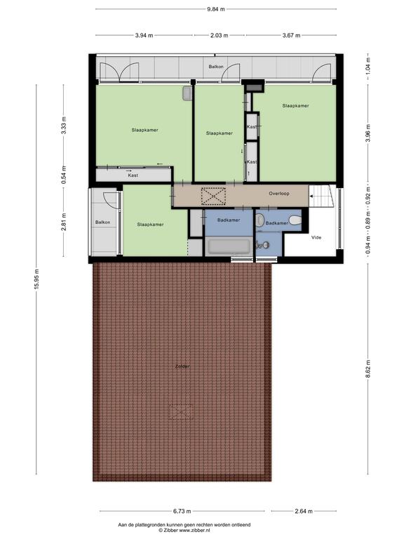
Eerste verdieping:
Middels de trapopgang met bordes is de overloop op de eerste verdieping bereikbaar. Vanuit hier zijn er maar liefst vier slaapkamers, toilet met douche en badkamer met bad te bereiken. Drie slaapkamers komen uit op een grote loggia. De vierde slaapkamer, tevens de kleinste slaapkamer, komt uit op een kleine loggia. Heerlijk wakker worden met een prachtig uitzicht vanaf hier. De overige slaapkamers zijn voorzien van vaste kasten.
Buitenruimte en bijgebouwen:
Het meest unieke van deze woning is de fraaie ligging op een ruim perceel met een prachtig uitzicht. Je waant je heerlijk vrij op dit perceel van 2.115 m². Het perceel aan de rand van het dorp biedt diverse mogelijkheden. Momenteel is een deel van het perceel in gebruik als vrije uitloop voor paarden. Er is een vrijstaande tuinberging aanwezig. Rond het huis ligt een groene tuin met terrassen en zitjes. Er is genoeg parkeergelegenheid op eigen terrein.
Bijzonderheden:
• Woonoppervlakte van circa 165 m²;
• Levensloopbestendig wonen;
• Gelegen op een unieke locatie met een vrije ligging;
• Diepe tuin met veel mogelijkheden;
• Inpandige garage in spouw uitgevoerd met op afstand bedienbare geïsoleerde segmentdeur;
• Inclusief houten tuinberging;
• Woning is voorzien van screens en één rolluik;
• Schilderwerk buitenzijde in 2024 uitgevoerd;
• Op de gehele woning is gevelreiniging toegepast;
• De voorgevel is compleet nieuw gevoegd in 2023;
• Woning is geschikt voor het realiseren van een praktijkruimte aan huis;
• De woning is in 1967 onder architectuur van Gerard Schouten gebouwd. Hij is bekend om zijn eenvoudige, doelmatige en bewuste keuze voor natuurlijke en duurzame bouwmaterialen.
AANVAARDING: IN OVERLEG
VRAAGPRIJS: € 599.000,- K.K.
Tot zekerheid van de nakoming van de verplichtingen van de koopovereenkomst dient de kopende partij een bankgarantie te stellen of een waarborgsom te storten ten bedrage van 10% van de koopsom.
Kenmerken
Overdracht
Prijs
€ 599.000,- k.k.
Status
Verkocht
Aanvaarding
In overleg
Bouw
Soort woonhuis
Eengezinswoning
Soort bouw
Bestaande bouw
Bouwjaar
1967
Soort dak
Zadeldak
Oppervlakten en inhoud
Wonen
165 m²
Gebouwgebonden buitenruimte
26 m²
Externe bergruimte
11 m²
Perceel
2115 m²
Inhoud
707 m³
Indeling
Aantal kamers
6
Aantal slaapkamers
5
Aantal badkamers
2
Badkamervoorzieningen
- Toilet
- Douche
- Wastafel
- Ligbad
- Toilet
- Douche
- Wastafel
Voorzieningen
- Rolluiken
- Buitenzonwering
- Rookkanaal
- Dakraam
- Glasvezel kabel
- Natuurlijke ventilatie
Energie
Energielabel
D
Isolatie
Muurisolatie, vloerisolatie, hr glas
Warm water
Cv ketel
Cv-ketel
Remeha
Kadastrale gegevens
Oppervlakte
2115
Buitenruimte
Ligging
Aan rustige weg, vrij uitzicht, open ligging
Tuin
Tuin rondom
Achtertuin
2000
Bergruimte
Schuur/berging
Vrijstaand hout
Schuur/berging voorzieningen
Voorzien van elektra
Garage
Soort garage
Inpandig
Garage capaciteit
1
Garage voorzieningen
Verwarming, elektra, water, vliering, elektrische deur
Garage isolatie
Dubbel glas
Parkeergelegenheid
Parkeergelegenheid
Op eigen terrein
Mocht je vragen hebben dan zijn we ook via Whatsapp te bereiken tijdens kantooruren!

