Kerkstraat 49

7471 AG GOOR

€ 219.500,- k.k.

Omschrijving

Deze woning ademt karakter! Gelegen aan de doorgaande weg, nabij het centrum van Goor met een diversiteit aan winkels en een treinstation. Met de snelweg A1 binnen handbereik, ben je in no-time verbonden met de rest van Nederland.

Met een royaal perceel van maar liefst 607 m², beschikt het pand ook over een ruime garage. De woning, oorspronkelijk gebouwd in 1933, is in 2021 deels gerenoveerd door de huidige eigenaar.

Benieuwd naar de mogelijkheden die deze bijzondere woning met ruim perceel te bieden heeft? We nodigen je graag uit om een bezichtiging te plannen en alles met eigen ogen te bekijken!

De indeling is als volgt:
Begane grond:
Bij binnenkomst via de entree kom je in het halletje, waarvandaan je toegang hebt tot het toilet en de woonkamer. De woonkamer met inbouwkast bestaat uit twee delen, gescheiden door prachtige ensuite deuren. Een charmant detail is dat enkele authentieke elementen, zoals de glas-in-loodramen in de woonkamer en het halletje, behouden zijn gebleven. Tevens is vanuit de woonkamer de kelder te bereiken. De gesloten keuken is voorzien van een U-opstelling en de benodigde inbouwapparatuur. Vanuit de keuken is er ook een achterom naar de tuin. De badkamer, uitgerust met een designradiator, wastafel en inloopdouche, bevindt zich op de begane grond aan de achterzijde van de woning.

Eerste verdieping:
Vanaf de overloop bereik je twee slaapkamers en een ruimte met wastafel en toilet. Daarnaast is er een vliering, ideaal voor het opbergen van spullen.

Buitenruimte:
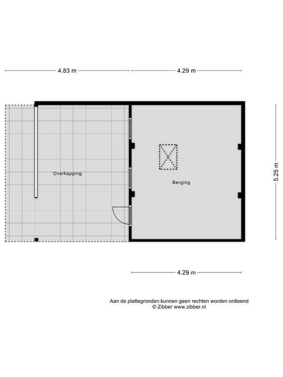
De royale achtertuin biedt veel groen en een vijver. De ruime garage met overkapping is een waardevolle toevoeging voor elke handige klusser. Op zomerse dagen is het heerlijk vertoeven onder de overkapping, waar je kunt genieten van de ruime tuin met voldoende zonlicht.

Bijzonderheden:
• Een woning met veel karakter;
• Gelegen in het centrum van Goor;
• Voorzien van badkamer op begane grond;
• Ruime schuur met overkapping en vliering;
• Royale tuin met maar liefst een perceeloppervlakte van 607 m²;
• Voorzien van authentieke details;
• Woonoppervlakte ca. 76 m²;
• Energielabel E.

AANVAARDING IN OVERLEG
VRAAGPRIJS: € 219.500,- K.K.

Tot zekerheid van de nakoming van de verplichtingen van de koopovereenkomst dient de kopende partij een bankgarantie
te stellen of een waarborgsom te storten ten bedrage van 10% van de koopsom.

Kenmerken

Overdracht

Prijs

€ 219.500,- k.k.

Status

Verkocht

Aanvaarding

In overleg

Bouw

Soort woonhuis

Eengezinswoning

Soort bouw

Bestaande bouw

Bouwjaar

1933

Soort dak

Mansarde dak

Oppervlakten en inhoud

Wonen

76 m²

Gebouwgebonden buitenruimte

1 m²

Externe bergruimte

43 m²

Perceel

607 m²

Inhoud

273 m³

Indeling

Aantal kamers

4

Aantal slaapkamers

2

Aantal badkamers

1

Badkamervoorzieningen

  • Douche
  • Wastafel

Voorzieningen

  • Rookkanaal
  • Glasvezel kabel

Energie

Energielabel

E

Isolatie

Dakisolatie, muurisolatie, vloerisolatie, gedeeltelijk dubbel glas

Warm water

Cv ketel

Cv-ketel

Bosch

Kadastrale gegevens

Oppervlakte

607

Buitenruimte

Ligging

In centrum

Tuin

Achtertuin

Achtertuin

524

Bergruimte

Schuur/berging

Vrijstaand steen

Schuur/berging voorzieningen

Voorzien van elektra, voorzien van water, met vliering

Garage

Soort garage

Geen garage

Parkeergelegenheid

Parkeergelegenheid

Openbaar parkeren