Henry Dunantweg 64

7161 WV NEEDE

€ 325.000,- k.k.

Omschrijving

Ben je op zoek naar een vrijstaande bungalow met twee slaapkamers, een badkamer op de begane grond en een aangebouwde stenen garage, gelegen op een ruim perceel met tuin rondom?
Dan ben je bij de Henry Dunantweg 64 aan het juiste adres.

De bungalow is gelegen in een rustige woonwijk, grenzend aan een groen plantsoentje. Het centrum van Neede ligt binnen handbereik. De groene omgeving rondom de populaire Needse Berg ligt tevens
zeer nabij. Er bevinden zich hier verschillende wandel- en fietsroutes door dit prachtige natuurgebied.

Kortom, deze toekomstbestendige bungalow met grote tuin is een ideale woning voor wie op zoek is naar comfort, rust en een groene omgeving. Neem snel contact met ons op om een bezichtiging in te
plannen!

De indeling is als volgt:
Begane grond:
Vanuit de hal heb je toegang tot de meterkast, woonkamer, badkamer, slaapkamer en bijkeuken. De woonkamer, met zicht op het groen plantsoentje, is voorzien van een fraaie houten vloer. Tevens bevindt zich hier een deur voor toegang naar de tuin. Vanuit de woonkamer, met veel natuurlijke lichtinval loop je door naar de half open keuken, de moderne keuken is voorzien van een inductiekookplaat met geïntegreerde afzuiging, combi-oven, combimagnetron, koel-vriescombinatie en vaatwasser. Ook vanuit de keuken is de tuin te bereiken. De badkamer is uitgerust met een toilet, bad en wastafel. De slaapkamer is aan de achterzijde van de woning gesitueerd. De trapopgang naar de eerste verdieping bevindt zich in de bijkeuken, tevens bevindt zich hier een aansluiting voor het witgoed, water en elektra.

Eerste verdieping:
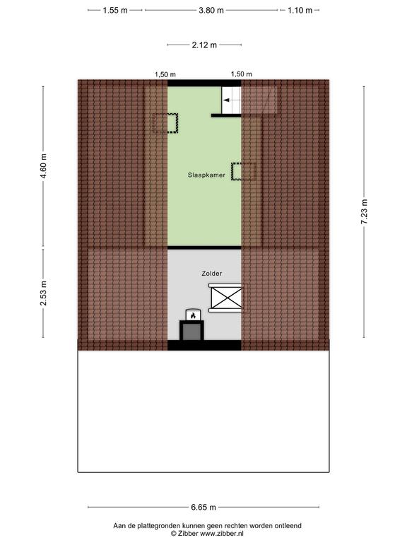
Via een vaste trap is de eerste verdieping bereikbaar, waar zich een ruime kamer bevindt. Deze multifunctionele ruimte kan gebruikt worden als hobby- of werkkamer, logeerkamer of als extra slaapkamer. Vanuit de hal is er middels een vlizotrap een bergzolder te bereiken.

Garage:
De aangebouwde garage is voorzien van dubbele deuren aan de voorzijde en beschikt over water, elektra en witgoedaansluiting.

Tuin:
Er ligt een riante tuin rondom de woning. Degenen met groene vingers kunnen hier lekker tuinieren, maar je kunt er ook heerlijk ontspannen op één van de vele terrassen in de tuin. Eventuele uitbouw is mogelijk.

Bijzonderheden:
- Woonoppervlakte circa 79 m²;
- Inhoud circa 364 m³;
- Stenen garage;
- Levensloopbestendig wonen;
- Gunstige ligging;
- Bouwjaar 1966;
- Energielabel D (voor verduurzaming).

AANVAARDING IN OVERLEG:
VRAAGPRIJS: € 325.000,- K.K.

Tot zekerheid van de nakoming van de verplichtingen van de koopovereenkomst dient de kopende partij een bankgarantie te stellen of een waarborgsom te storten ten bedrage van 10% van de koopsom.

Kenmerken

Overdracht

Prijs

€ 325.000,- k.k.

Status

Verkocht

Aanvaarding

In overleg

Bouw

Soort woonhuis

Bungalow

Soort bouw

Bestaande bouw

Bouwjaar

1966

Soort dak

Zadeldak

Oppervlakten en inhoud

Wonen

79 m²

Gebouwgebonden buitenruimte

22 m²

Perceel

440 m²

Inhoud

364 m³

Indeling

Aantal kamers

3

Aantal slaapkamers

2

Aantal badkamers

1

Badkamervoorzieningen

  • Ligbad
  • Toilet
  • Wastafel

Voorzieningen

  • Buitenzonwering
  • Dakraam
  • Glasvezel kabel
  • Natuurlijke ventilatie

Energie

Energielabel

D

Isolatie

Dakisolatie, vloerisolatie, gedeeltelijk dubbel glas

Warm water

Cv ketel

Cv-ketel

Nefit proline

Kadastrale gegevens

Oppervlakte

440

Buitenruimte

Ligging

In woonwijk

Tuin

Achtertuin, voortuin, zijtuin

Achtertuin

342

Ligging tuin

Zuid

Garage

Soort garage

Aangebouwd steen

Garage capaciteit

1

Garage voorzieningen

Elektra, water

Parkeergelegenheid

Parkeergelegenheid

Op eigen terrein