Bergstraat 21
7161 EE NEEDE
€ 487.500,- k.k.
Omschrijving
Karakter, ruimte en licht – welkom op Bergstraat 21 in Neede!Ben je op zoek naar een ruime woning met karakter, veel licht en een praktische indeling? Dan is Bergstraat 21 absoluut een bezoek waard! Achter de charmante gevel gaat een verrassend royaal woonhuis schuil, met een woonoppervlakte van maar liefst 209 m² en een inhoud van 855 m³. Een huis dat gemaakt is om in te wonen, te genieten én tot rust te komen.
SFEERVOL WONEN
Bij binnenkomst word je direct verrast door de lichte woonkamer met hoge plafonds en zichtbare gebinten, wat de ruimte een stoere, maar toch warme uitstraling geeft. Aan de achterzijde bevindt zich een prachtige serre met grote raampartijen, waardoor er veel daglicht binnenvalt en je een schitterend uitzicht hebt op de tuin. Hier geniet je het hele jaar door van een heerlijk binnen-buiten gevoel.
De royale leefkeuken vormt het hart van de woning: koken, tafelen en gezellig samenzijn komen hier perfect samen. Naast de keuken vind je een speelkamer voor de kinderen, die ook uitstekend dienst kan doen als hobbyruimte of thuiswerkplek. Daarnaast zijn er diverse praktische voorzieningen, zoals een bijkeuken, berging en een inloopkast.
Op de begane grond bevindt zich bovendien een slaapkamer met badkamer, ideaal voor wie gelijkvloers wil wonen. De indeling van de woning is bijzonder prettig: in het oude voorhuis bevindt zich de woonkamer, terwijl het aangebouwde deel aan de achterzijde ruimte biedt aan de royale leefkeuken met serre.
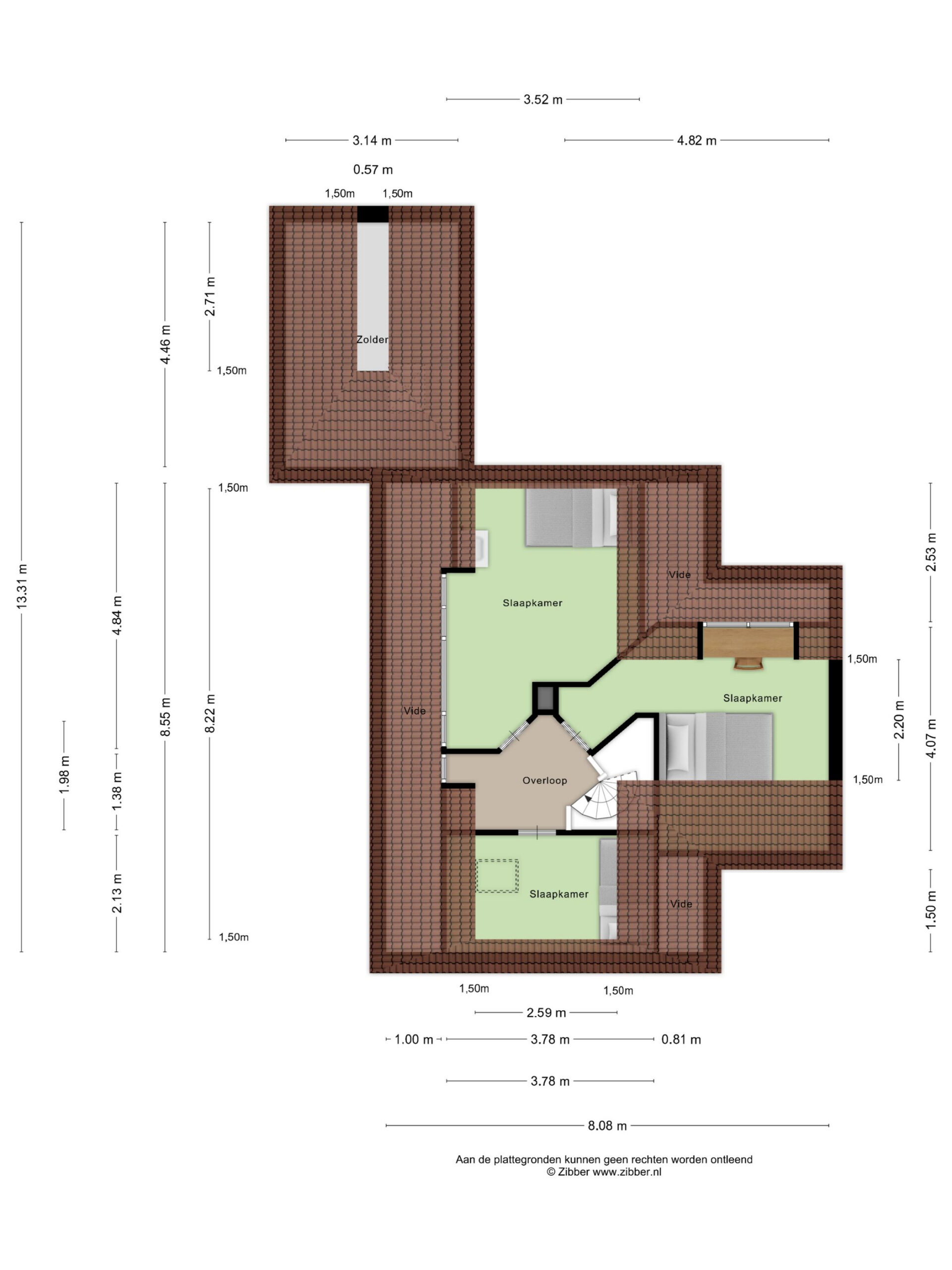
Op de eerste verdieping tref je drie comfortabele slaapkamers en een lichte overloop. De combinatie van schuine daken, een vide en speelse hoeken maakt dit een sfeervolle en unieke etage.
DE HUIDIGE EIGENAREN AAN HET WOORD – DELEN HUN VERHAAL
“Wij hebben de woning in 2018 gekocht. Het voorhuis, gebouwd in 1908, heeft in al die jaren een prachtige geschiedenis doorgemaakt en ademt nog altijd veel karakter. Destijds bevond zich aan de achterzijde een cafetaria, maar wij zagen direct de potentie van deze ruimte. We hebben het volledig omgebouwd tot een royale leefruimte, met een prachtige leefkeuken en een serre met zicht op de achtertuin. Hier genieten we elke dag van het licht, de ruimte en het heerlijke contact met buiten.'
BUITENLEVEN
De ruime achtertuin is een heerlijke plek om te ontspannen. Er is voldoende ruimte voor een terras, een trampoline en speelplekken voor kinderen. Dankzij de gunstige ligging op het perceel geniet je hier volop privacy. Tussen het voorhuis en het aangebouwde gedeelte bevindt zich bovendien een binnentuin, een knusse plek waar je zomers heerlijk kunt vertoeven.
LOCATIE
Bergstraat 21 ligt in het hart van Neede, met winkels, scholen en andere voorzieningen op loopafstand. Ook de uitvalswegen richting Enschede, Doetinchem en de snelweg zijn snel en eenvoudig bereikbaar, waardoor de ligging zowel centraal als praktisch is.
BIJZONDERHEDEN:
- Woning met authentieke elementen op een ruim perceel
- Royale leefruimte van maar liefst 209 m²
- Tuin met veel privacy
- Gelegen nabij het centrum van Neede
- Slaapkamer en badkamer op de begane grond
- Authentiek voorhuis uit 1908
AANVAARDING: IN OVERLEG
VRAAGPRIJS: € 487.500,- k.k.
Tot zekerheid van de nakoming van de verplichtingen van de koopovereenkomst dient de kopende partij een bankgarantie te stellen of een waarborgsom te storten ten bedrage van 10% van de koopsom.
Kenmerken
Overdracht
Prijs
€ 487.500,- k.k.
Status
Verkocht
Aanvaarding
In overleg
Bouw
Soort woonhuis
Eengezinswoning
Soort bouw
Bestaande bouw
Bouwjaar
1908
Soort dak
Samengesteld dak
Oppervlakten en inhoud
Wonen
210 m²
Gebouwgebonden buitenruimte
21 m²
Perceel
544 m²
Inhoud
855 m³
Indeling
Aantal kamers
8
Aantal slaapkamers
4
Aantal badkamers
1
Badkamervoorzieningen
- Ligbad
- Toilet
- Douche
- Wastafel
Voorzieningen
- Glasvezel kabel
- Zonnepanelen
Energie
Energielabel
G
Isolatie
Dakisolatie, muurisolatie, gedeeltelijk dubbel glas
Warm water
Cv ketel, gasboiler eigendom
Cv-ketel
Remeha
Kadastrale gegevens
Oppervlakte
544
Buitenruimte
Ligging
Aan rustige weg, in centrum, in woonwijk
Tuin
Tuin rondom
Achtertuin
346
Bergruimte
Schuur/berging
Inpandig
Schuur/berging voorzieningen
Voorzien van elektra
Garage
Soort garage
Geen garage
Parkeergelegenheid
Parkeergelegenheid
Openbaar parkeren, op eigen terrein
1
Scan de code
Wormgoor Whatsapp
Welkom bij Wormgoor 👋
Mocht je vragen hebben dan zijn we ook via Whatsapp te bereiken tijdens kantooruren!
Mocht je vragen hebben dan zijn we ook via Whatsapp te bereiken tijdens kantooruren!
Begin een chat

